PROJECT FACTS
Function: contemporary art gallery
Location: Dabas (Hungary)
Year: 2008-2010
Type: realized reconstruction, voluntary work
In collaboration with István Ligetvári and Csaba Póra
Local Architecture Heritage Award 2010 – 1st prize
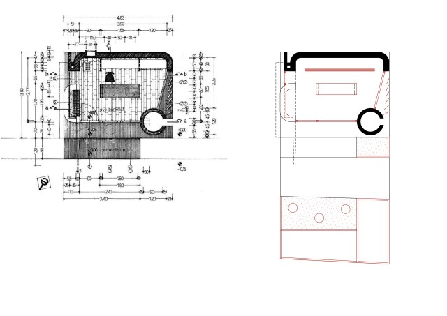
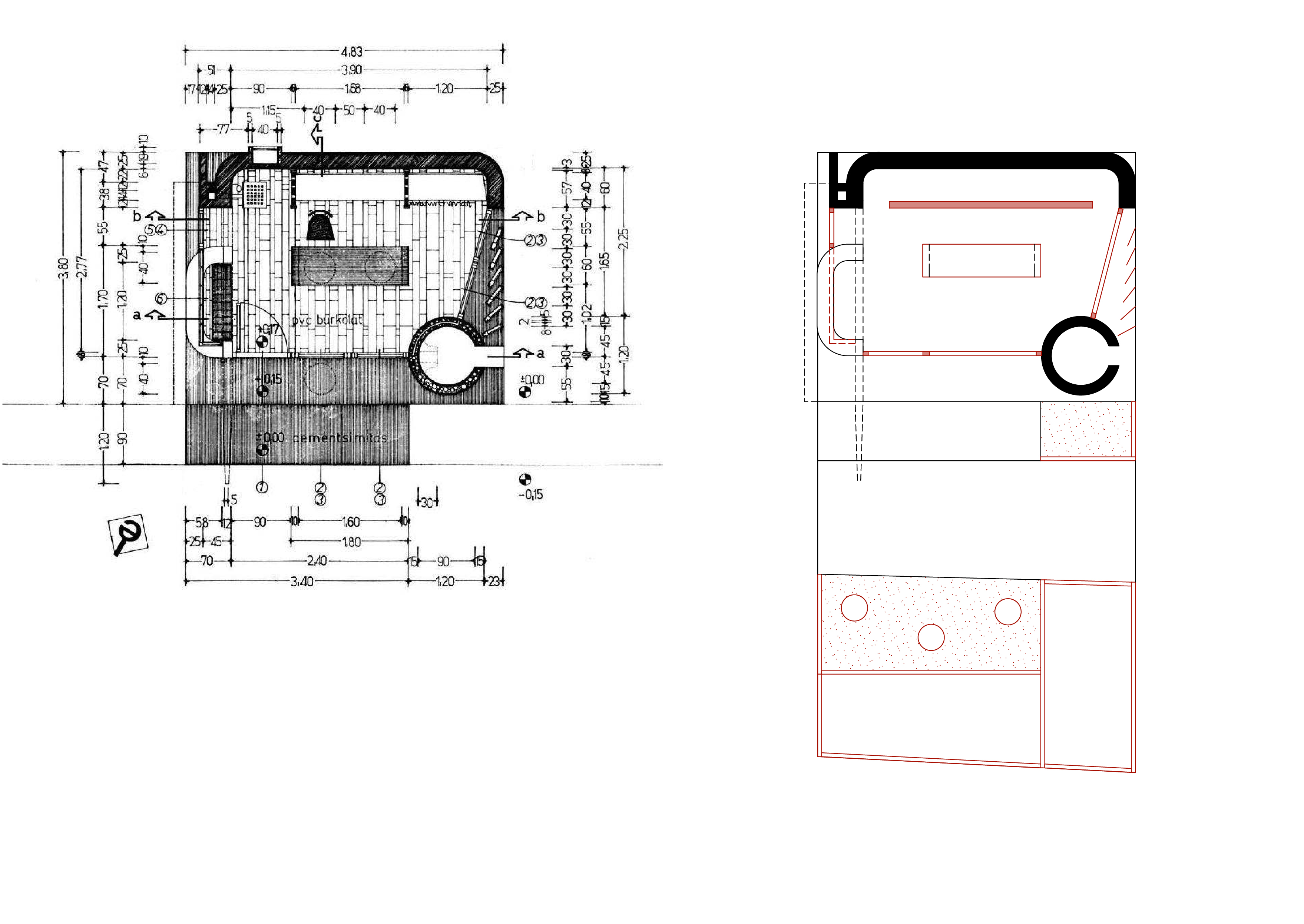
The small art association, Trafik Kör, in the town of Dabas (H) was estabilished to rescue the former tobacco shop building, which was errected in the early 1980’s by the local architect, Zoltán Ries. After the Hungarian system change in 1989 the “Trafik” had been out of function for a long time and the local government planed to demolish the the building. The news about the demolition started a new chapter in the life of the small building, because some locals tried to find a new function for it. Finally it became an art gallery.
Basically “Trafik” was reconstucted following the original plans of Zoltán Ries, but a new layer was installed onto the building: window frames, roof edge coverings and shading elements are made of corten steel. The windows were replaced and redesigned for the new funcition. The visitors cannot enter into the exhibition space, but they can watch the exhibition from the outside. In this case the builing has a very active connection with the street. An outdoor sound system was installed in the ceiling, too, so the visitors can listen and watch the short art movies from the new public space in front of the building.
The reconstruction was realized with a very modest budget, but in a relatively high quality, using the work of volunteers (including the designers of the reconstruction). The successful projekt has won the Local Heritage Award in 2010, which was a great recognition for the design team and the local community.





